Offers over £195,000 Freehold (Under Offer)

Property Features

  • 75 MINUTES FROM GLASGOW
  • WATERSIDE COASTAL PLOT
  • STRIKING 5 BEDROOM ARCHITECTURALLY DESIGNED DETACHED DWELLING
  • LARGE GROUNDS
  • NEARBY WEDDING VENUES; CARRICK CASTLE ESTATE WEDDINGS & LODGE ON LOCH GOIL
  • EXCELLENT LOCAL ACTIVITIES AND FACILITIES
  • STRIKING ARCHITECT DESIGNS
  • SUPERB HOLIDAY LETTING PROJECT
  • ICONIC & HISTORIC BUILDING
  • STUNNING SEA LOCH AND MOUNTAIN RANGE VIEWS

Brief Description

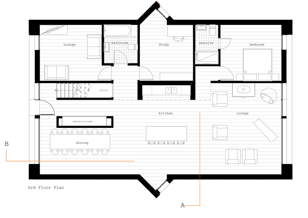
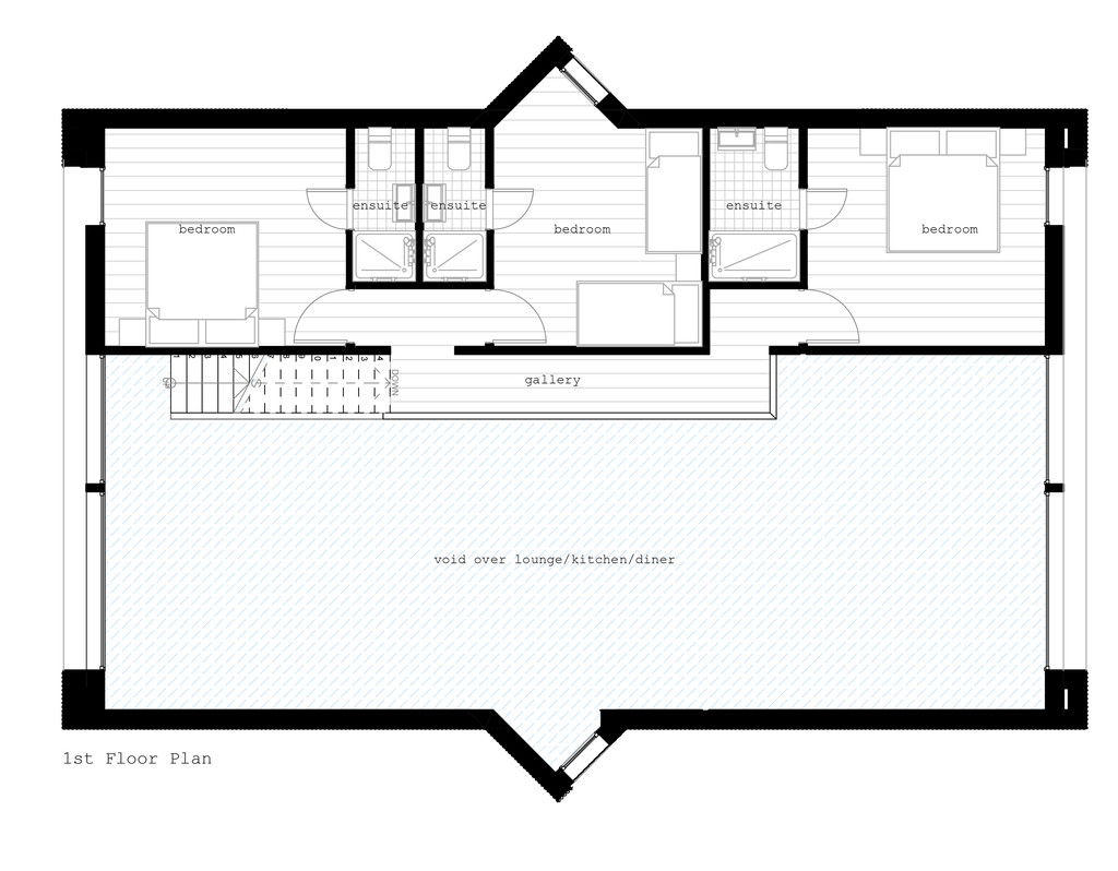
##UNDER OFFER AWAITING MISSIVES## STRIKING ARCHITECT DESIGNED 5 BEDROOM HOUSE WITH FRONT TO BACK LIVING SPACE WHICH ENJOYS INCREDIBLE NATURAL LIGHT LOCATED ON THE BANKS OF LOCH GOIL 75 MINUTES FROM GLASGOW WITH FULL PLANNING PERMISSION GRANTED SET IN A GENEROUS PLOT OF CIRCA 0.4 ACRES WITH UNINTERRUPTED VIEWS OF THE COASTLINE, SEA LOCH AND THE SURROUNDING MOUNTAIN RANGES.

Main Description

STRIKING ARCHITECTURALLY DESIGNED 5 BEDROOM HOUSE WITH FRONT TO BACK LIVING SPACE WHICH ENJOYS INCREDIBLE NATURAL LIGHT, LOCATED ON THE BANKS OF LOCH GOIL 75 MINUTES FROM GLASGOW WITH FULL PLANNING PERMISSION GRANTED AND SET IN A GENEROUS PLOT OF CIRCA 0.4 ACRES WITH UNINTERRUPTED VIEWS OF THE COASTLINE, SEA LOCH AND THE SURROUNDING MOUNTAIN RANGES.

This glorious west coast building plot is set in a cul-de-sac, peninsula location with simply stunning coastal and wild rural views 360 degrees. Set just 75 minutes from Glasgow and accessible by road and sea, the surrounding area offers convenience shopping at nearby Lochgoilhead [10 mins drive], leisure facilities including spa and swimming pool at Drimsynie Estate Holiday Park [10 mins drive], Loch Fyne Oyster Bar [30 mins drive] & Inveraray [40 mins drive]. Other activities available nearby include; Loch Goil Cruisers Boat Hire, Argyll Voyageurs Canoe Hire, Lochgoilhead Kayak Hire, Carrick Laser Clays & Argyll Bike Hire.

Site B - 0.4 acre site with detailed planning consent for unique, architecturally designed, 5 bedroom residential dwelling with no restrictions.

Our clients will favour a purchaser seeking both Site A & Site B together. Both sites are on the same title however the title can be split if necessary.

##NB: This property is part owned by the Managing Director of IVY Property##

Viewing

Please contact us on 0141 339 8935 if you wish to arrange a viewing appointment for this property, or require further information.

Disclaimer

Ivy Property - G12 endeavour to maintain accurate depictions of properties in Virtual Tours, Floor Plans and descriptions, however, these are intended only as a guide and purchasers must satisfy themselves by personal inspection.
IE8 Alert! Cookie Alert!

To get the best possible experience using our website we recommend you upgrade to a modern web browser. More info