Offers over £220,000 Freehold (Under Offer)

Property Features

  • LOCATED IN ONE OF GLASGOW'S MOST ICONIC BUILDINGS
  • TWO BEDROOM DUPLEX
  • GROUND FLOOR POSITION
  • IMPRESSIVE FEATURE WINDOW RUNNING TWO LEVELS
  • OPEN-PLAN LIVING
  • WELL-EQUIPPED KITCHEN
  • INTEGRATED STORAGE
  • SECURE DOOR ENTRY SYSTEM
  • HOST OF NEARBY AMENITIES
  • EXCELLENT LOCATION

Brief Description

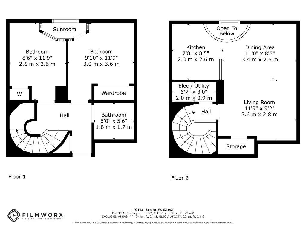
AN IMPRESSIVE TWO-BEDROOM DUPLEX CONVERSION SITUATED WITHIN THE ICONIC TRINITY TOWER BUILDING IN THE PARK DISTRICT AREA

Main Description

Impressive 2 bedroom duplex conversion situated within the iconic Trinity Tower Building with it's unrivalled, pillared, botanical communal atrium in the Park District. This historic building boasts an epic tower which stands proudly as the highest point in Glasgow City & the west end. The building is entered via the glazed entrance door held under a sandstone archway with security entry and the aforementioned atrium and stairwell are some of Glasgow's finest examples.

The accommodation comprises; reception hall with access to the stylish 3 piece bathroom with over-bath shower and 2 double bedrooms which both have fitted storage. Upstairs there is a well laid out L-shaped lounge/dining kitchen space with impressive feature full height window & breakfast bar together with 2 storage cupboards.

This historic location is perfectly placed for the west end, the city centre, Kelvingrove Park and all the surrounding renowned leisure offerings in the west end together with the flourishing Finnieston Strip which is home to several restaurants.

Viewing

Please contact us on 0141 339 8935 if you wish to arrange a viewing appointment for this property, or require further information.

Energy Performance Certificate
Click here to view the Energy Efficiency Rating and Environmental Impact Rating for this property.


Disclaimer

Ivy Property - G12 endeavour to maintain accurate depictions of properties in Virtual Tours, Floor Plans and descriptions, however, these are intended only as a guide and purchasers must satisfy themselves by personal inspection.
IE8 Alert! Cookie Alert!

To get the best possible experience using our website we recommend you upgrade to a modern web browser. More info