Offers over £115,000 Freehold (Under Offer)

Property Features

  • SEMI-DETACHED HOUSE
  • THREE GOOD-SIZED BEDROOMS
  • COMPRISED OVER TWO FLOORS
  • ABUNDANCE OF NATURAL LIGHT
  • FEATURE FIREPLACE
  • WELL-EQUIPPED KITCHEN
  • THREE-PIECE SHOWER-ROOM
  • LARGE PRIVATE REAR GARDEN
  • NEARBY NATURE WALKS
  • HOST OF NEARBY AMENITIES

Brief Description

# # CLOSING DATE SET FOR THURSDAY 24TH APRIL @ 12PM # # A WELL-APPOINTED THREE-BEDROOM SEMI-DETACHED HOUSE NESTLED IN THE POPULAR AREA OF LINWOOD

Main Description

PROPERTY DESCRIPTION Nestled in the charming community of Linwood, this delightful 3-bedroom semi-detached house offers a perfect blend of modern comfort and practical living. Ideal for families, or those seeking a well-connected yet peaceful location, this property boasts a thoughtfully designed layout across two floors, complemented by generous, enclosed corner gardens and close proximity to local amenities.

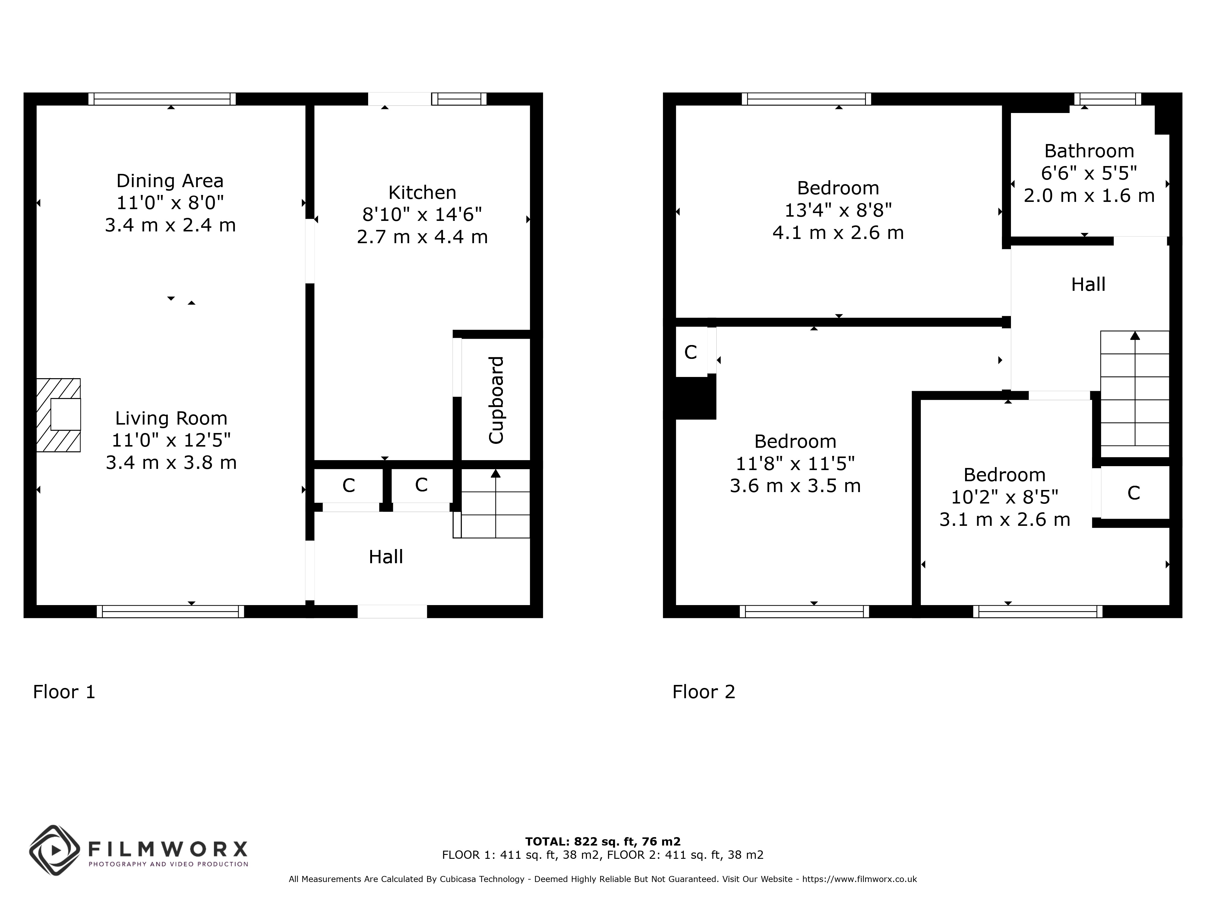
Upon entering, you are greeted by a welcoming hallway featuring built-in storage, providing a practical solution for keeping the space clutter-free. The heart of the home is the spacious living room and dining area, bathed in natural light thanks to windows to the front and rear of the room. This airy and versatile space is enhanced by a feature fireplace, adding character and providing a centre piece to the room. Also on the ground floor, the well-appointed kitchen comes equipped with all necessary appliances and offers ample cupboard space for storage. A convenient back door leads directly to the private rear patio and garden, seamlessly connecting indoor and outdoor living.

Ascending to the upper level, the main bedroom impresses with its significant size and built-in storage, offering a tranquil retreat with plenty of room for personalization. The second bedroom is equally generous, providing ample space for standalone furniture units, making it ideal for family, guests, or additional storage needs. Bedroom 3 is a versatile space perfect as a guest room, nursery, or home office, with further built-in storage to maximize its utility. Completing this floor is the fully-tiled shower-room which features a modern three-piece suite, complete with a walk-in shower and rear facing window for natural light.

Outside, the large, private corner garden is a standout feature, well-maintained and offering a peaceful haven for relaxation, gardening, or entertaining. To the front, a small, low maintenance patio garden can be found with the property further benefitting from open green space to the front providing separation from the street and enhancing the property's kerb appeal.

Situated in Linwood, this home is perfectly positioned for convenience and leisure. A short walk brings you to Clippens Road, where a variety of shops, cafes, and eateries cater to everyday need and social outing. Nature enthusiasts will appreciate the abundance of nearby walking routes, such as the scenic Linwood Circular Trail. For broader shopping and entertainment options, Phoenix Retail Park is just a 5-minute drive away, offering a host of supermarkets, takeaways, high-street shops, and a cinema.


Viewing

Please contact us on 0141 339 8935 if you wish to arrange a viewing appointment for this property, or require further information.

Energy Performance Certificate
Click here to view the Energy Efficiency Rating and Environmental Impact Rating for this property.


Disclaimer

Ivy Property - G12 endeavour to maintain accurate depictions of properties in Virtual Tours, Floor Plans and descriptions, however, these are intended only as a guide and purchasers must satisfy themselves by personal inspection.
IE8 Alert! Cookie Alert!

To get the best possible experience using our website we recommend you upgrade to a modern web browser. More info